ADU Structural Engineering

Build Your ADU
From the Ground Up

We provide structural engineering for detached ADUs, attached additions, and garage conversions throughout the Bay Area. Permit-ready plans that meet California Building Code and move efficiently through plan review.

Wood framing for ADU under construction
Why it matters

Why Structural Design Matters for ADUs

Detached ADUs behave like small standalone homes and must safely resist the same gravity, wind, and seismic forces as a primary residence. Foundations, framing, and lateral systems must work together to transfer loads from the roof and walls down into the ground without excessive movement or damage.

Attached ADUs and conversions introduce additional challenges because new loads must integrate with the existing structure. Proper analysis ensures beams, walls, and foundations are adequate while maintaining a continuous load path and full code compliance.


What to expect

Common Structural Considerations

Every ADU project has unique structural demands depending on type, site conditions, and local requirements. Here are the most common areas we address.

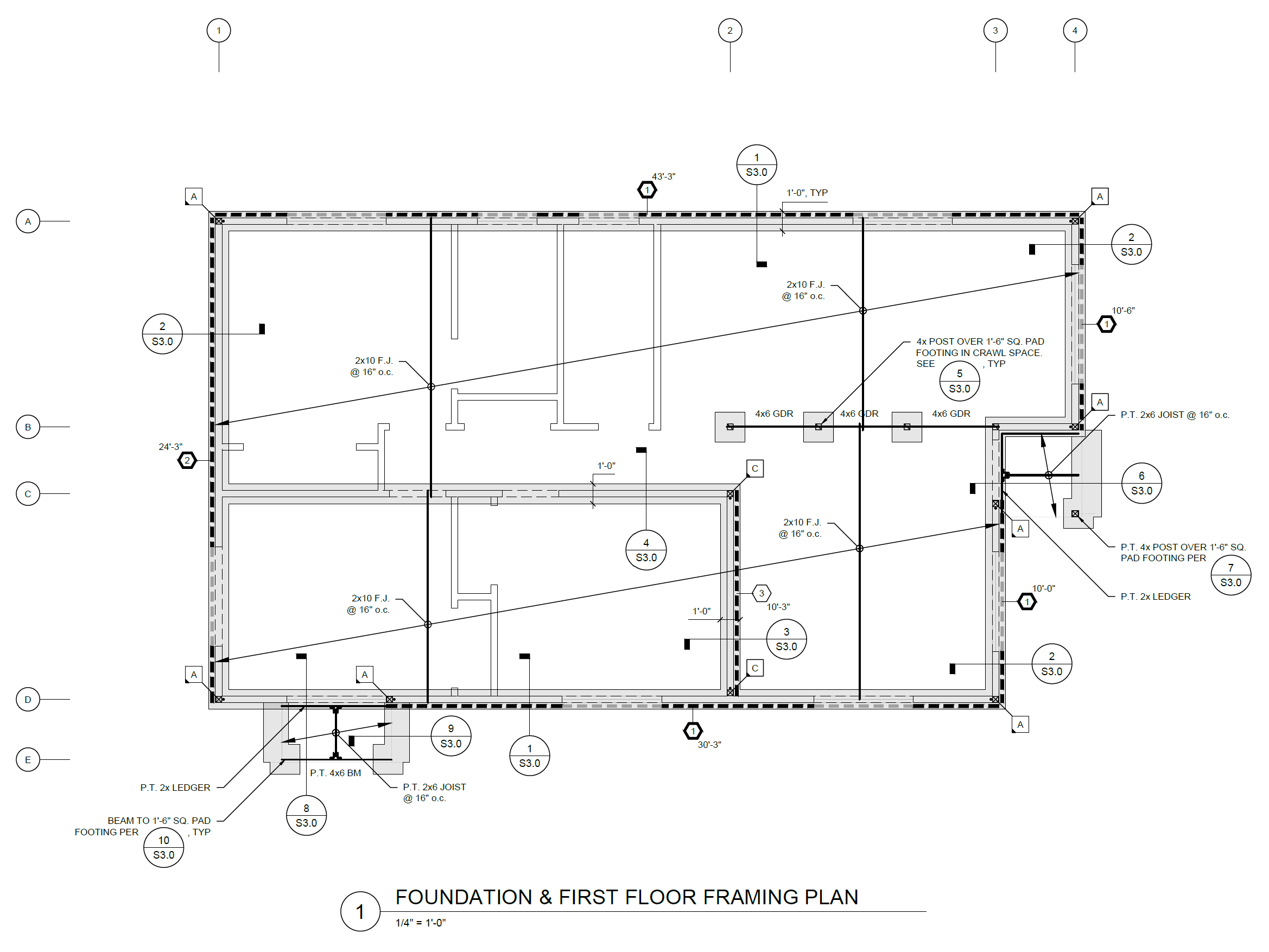
New or Upgraded Foundations & Slabs

Reinforced concrete slabs or footings sized for soil conditions, with anchor bolts and hold-downs to secure framing.

Engineered Beams & Headers

Engineered wood or steel beams sized for open layouts, large windows, and flexible interior spaces while controlling deflection.

Integration with Existing Structures

For attached ADUs and conversions, new loads must tie into existing framing, foundations, and load paths without compromise.

Seismic Bracing & Load Paths

Shear walls, collectors, and metal connectors transfer wind and earthquake forces continuously from roof to foundation.

What we design

Key Structural Systems and Components

Foundations & Slabs

Reinforced concrete slabs or footings distribute building loads to the soil and anchor the structure during seismic events. Anchor bolts and hold-downs secure the framing to the foundation and establish a reliable base for the entire structure.

Framing & Beams

Floor and roof framing members are sized to support gravity loads while limiting deflection. Engineered wood or steel beams allow for open layouts, large windows, and flexible interior spaces without sacrificing structural integrity.

Lateral & Seismic Systems

Shear walls, collectors, and metal connectors resist wind and earthquake forces and transfer them safely to the foundation through a continuous load path. Proper detailing is essential for California seismic compliance.

Attached ADUs & Conversions

Garage conversions, interior living space conversions, and junior ADUs often rely on framing not originally designed for residential occupancy. Structural upgrades may include slab reinforcement, new beams, added bracing, and improved connections to meet modern code requirements.

We prepare ADU structural plans in accordance with the California Building Code and applicable local amendments. Our drawings are organized and detailed to minimize plan check comments and keep your project on schedule.
ADU framing with plywood shear wall installed
Framing with plywood shear wall installed.
Rebar laid out prior to pouring concrete
Rebar laid out prior to pouring concrete.

Planning an ADU Project?

We provide clear structural plans and calculations ready for permit submittal and contractor coordination.

Schedule a Consultation